BuildingID
Zoeken...
BuildingID
BuildingID
Content
1D - Informatie
2D - Tekeningen
3D - GIS
3D - BIM
Diensten
Doelgroepen
Overheden
Financiële sector
Consumenten organisaties
Woningbouwcorporaties
Bedrijfsleven
Bouwsector
Contact
Privacy Policy
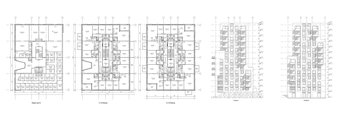
2D - Tekeningen
Individuele Technische Plattegrond
Verhuur plattegronden
NEN 2580 Rapportage
Woning locatie 3D model
Overzicht plattegronden
Doorsneden
Buitenruimten
Geveltekeningen
BAG-Luchtfoto-Kadaster Overzicht
BAG- / WOZ-registraties
Registratie compleet met o.a. huisnummerbesluit, BVO/GO, BAG/BGT .shp-bestanden en WOZ-deelobjecten
Kavels
kavels bebouwd / onbebouwd
tuin orientatie
afmetingen en oppervlakte
aangrenzende percelen
Plattegronden
per verdieping
online / offline
Gevels
oppervlakte
open-dicht verhouding